Sklenik, Queenstown

Mountainside Gable House in Queenstown

Designing hillside homes nestled in the mountains of Queenstown means we’re constantly looking for ways to get the most out of the height and the views that come with these sections. Moonlight Terraces in Arthurs Point is no exception, encompassing breathtaking views out over the Shotover River. The challenge for an architect is to ensure we capture and frame each view to create amazing living spaces for home owners to enjoy.

The Brief

Our clients here were excited about the stunning views over the Shotover River from this hillside section, but they struggled to visualise what sort of home could be built on such a steep site. That’s where we came in.

Rather than being particularly detailed about how they wanted the house to look, they left it to us to develop a concept for a large family home that would be great for visitors and entertaining. The brief to us was simply to figure out how to make it possible.

We started the process by working with the landscape, not against it. The section has a gentle contour and then a steep climb up to a higher platform. It is north-facing, with access from the north side, the front. So the approach would be up towards the front of the house.

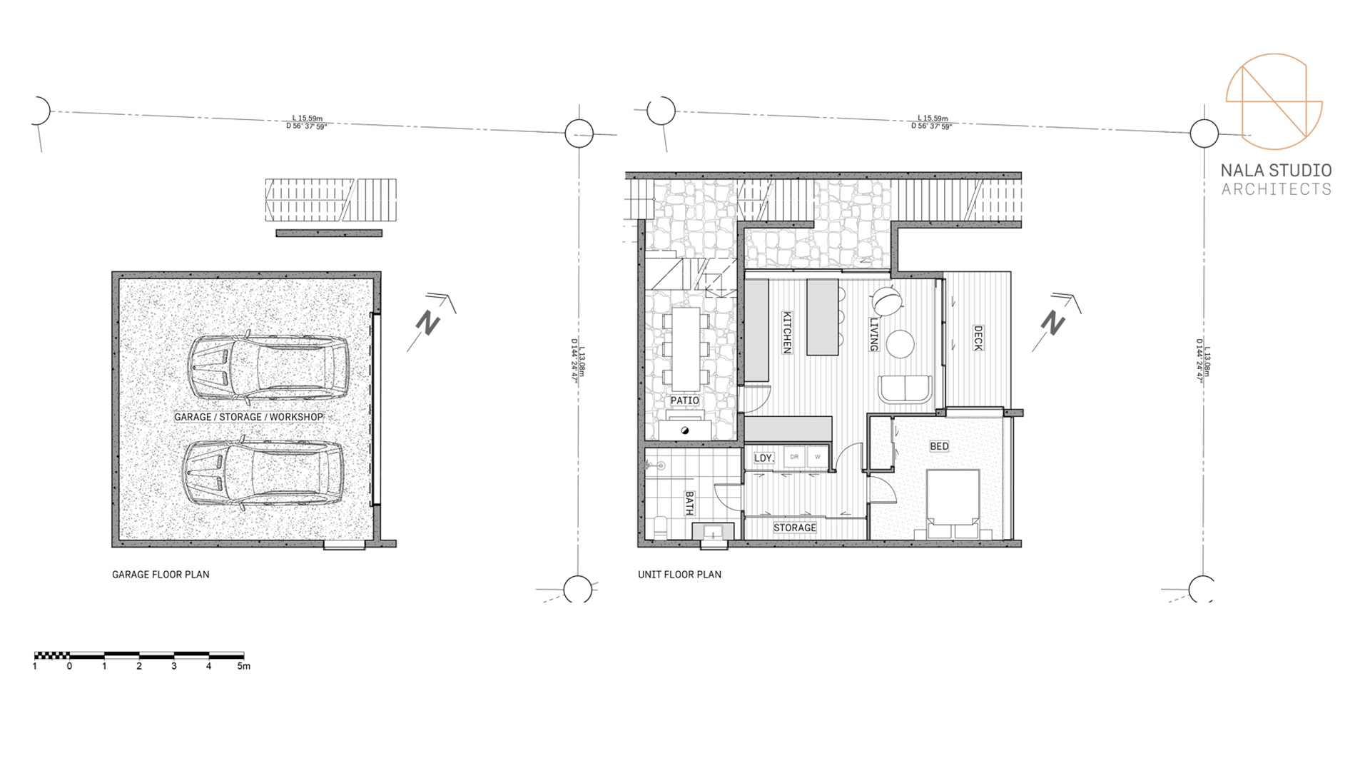
The slope of the land, then, created the opportunity to build on these two parts of the section independently. It made sense to have the garage on the first part, where the first contour is, and then the main home on the higher platform.

Queenstown Architecture - Residential Design
Architecturally Designed Queenstown House
New build in Arthurs point
House plans, Queenstown Architecture
Concept Plans for New house in Queenstown

The Design

As you drive up to the section, we have a double garage on the first landing. Here we’ve also incorporated extra storage and a drying room – always desirable features in a home in Queenstown.

Access to the main house is up a set of external steps that climb to the higher landing. This enabled us to design a grand front entrance that isn’t obstructed by the garage. It also meant that we could create additional accommodation on top of the garage.

So we have designed a separate, self-contained living space above the garage. This can be used as a home office, visitor accommodation or an Airbnb rental. It is also north-facing with views out to the river that can be enjoyed however they decide to use the space.

This unit also has its own sheltered courtyard at the back with an outdoor fireplace. Facing west, this protected area will be a wonderful spot to watch the sunset in the evening.

For the main house, we’ve used a gable design that works beautifully for homes in the mountains. On the main level, we have four bedrooms that each have fantastic views out front. And upstairs, on the top level, we have a big open living space. The kitchen, living and dining areas are all north-facing, so they enjoy the gorgeous views and the sun.

We extended the gable form out towards the west end of the house, creating a covered courtyard, something every Queenstown architect knows is a must-have in this part of the country. This will provide a beautiful spot year-round to sit and relax or to entertain guests. In the winter they can close the glass sliding doors and still enjoy the view, while in the summer, they can open up the doors and enjoy the sunshine.

We’ve positioned a double-sided fireplace here which opens on one side to the living room inside and, on the other side, to the covered courtyard outside. We always like to envision how our clients can use their space, and here we can see them sitting with a mulled wine in front of the fire, watching the beautiful Queenstown sunset.

The enclosed courtyard opens out to an external patio that wraps around the north and west of the property, providing more outdoor space that receives the afternoon and evening sun. We’ve also designed a long terrace at the front of the house in front of the bedrooms, where they can sit and enjoy the view with their morning coffee.

The Result

Even though this home sits on quite a steep site, we’ve given our clients lots of outdoor space to use. We designed all the rooms and living spaces to take advantage of the spectacular outlook. And we’ve created a separate accommodation space that provides flexibility to how they use their home. The end result will be a fabulous architecturally designed Queenstown home with amazing views over the Shotover River.

If you have purchased a site or are wishing to build a house in Central Otago, please don't hesitate to contact Queenstown's premier architects, Nala Studio Architects.

Similar Projects