The Point

New residential development in Queenstown

For an architect, Queenstown and all of Central Otago are a dream location to design a home. The natural beauty of the region and the rugged landscapes make for an amazing backdrops for a dream home. This design encompasses all of that. The specified materials will be all local so the house is innkeeping with it's environment and surroundings

The Brief

Our client asked us for a relatively simple and straightforward design with an elegant timeless appeal for this section. Unlike the majority of sections in Queenstown, the site is quite flat.

Their desire was for a modern yet uncomplicated family home that showcased the views over the Shotover River.

As with all Queenstown developments, the position of the home on section was really important to ensure we take advantage of the sunlight but still protect against winds. Outdoor areas need to be sheltered from the elements while enhancing the natural light and framing the view, making for great year round entertainment space. 

Arthurs Point Development, Queenstown
Residential Architecture in Queenstown
Queenstown Architects
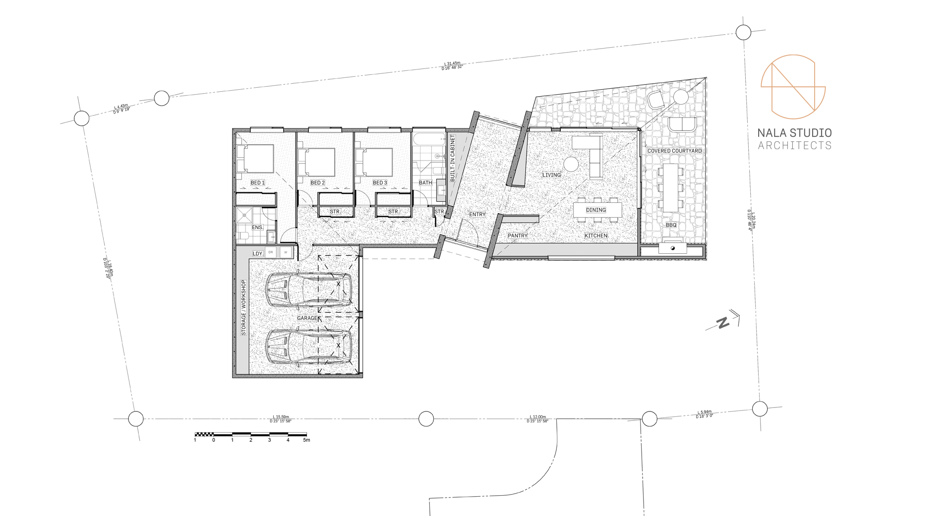
Floor Plan - Queenstown Architectural floor plans

The Design

The section we were designing for here had previously been the location of the previous home’s tennis courts. So we didn’t have any excavation or access issues to work around.

What we did want to factor in was that the section is at the end of a right of way. Privacy is something we carefully considered, as well as the orientation of the rooms and the windows, in order to avoid the glare of car headlights driving up the right of way at night.

We’ve designed the site, then, so that as you drive up the right of way, you approach the eastern side of the house and the double garage which faces south. The front door is at a slight angle so that it doesn’t face directly out to the drive. This is just another subtle touch that introduces an element of privacy, allowing the occupants to open the front door without the worry of people being able to see directly into the house.

As you walk through the front door, you’re greeted by a very generous hallway that separates what we refer to as the public and private parts of the home. At the end of this hallway is a full-height glass window, so as you enter the home you are immediately taken in by the beautiful, sunny views, reminding you of where you are in this gorgeous part of NZ.

The ‘public’ parts of the house, the kitchen, living and entertaining areas, are on the right-hand side facing north and enjoying the amazing views. The ‘private’ zones, such as the bedrooms and the bathrooms, are on the left-hand side, facing west to southwest.

The Result

While we’ve stayed with a relatively simple design here, there is nothing basic about this home. Its simplicity gives it a contemporary feel, and its clean lines do not detract from the incredible views and surrounding scenery. The living area and the deck wrap from the north side of the house, along the west side, around to the south – enjoying the sun all day long. On the east-facing wall we’ve put an outdoor fireplace which not only gives them an outdoor space to enjoy, but also acts as a privacy wall from the driveway and the neighbouring homes. The house is clad in folded metal with a mono pitch roof. The roof line has a slight twist, with the roof and soffit rising up towards the views and the sun, while providing protection from the weather.

You can’t tell from the driveway just how stunning this home is. It may seem understated and private from the road, but once inside, you realise what a gorgeous home you’ve entered.

Similar Projects