Tainui Terrace

Clever use of the extra land in the backyard

Our clients at Tainui Terrace were a mature couple with extra land they weren’t using. With a large, relatively flat section, the option to subdivide and build had piqued their interest for a while. They were keen for a project that wasn’t going to be overly complicated or hard to sell, so we were happy to be involved and help out.

The Brief

Our objective was to make the most of approximately 300 square metres of land and satisfy three simple criteria:

  • plan a property that would be easy to build and sell
  • design a simple yet elegant home that would appeal to first-time buyers or a young family
  • create a home with a modern design and appeal

The Design

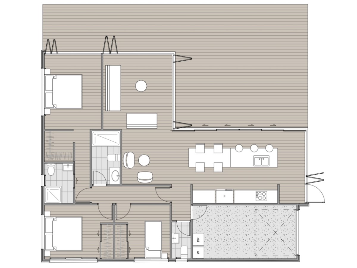
The position of the new home is perfect for capturing all-day sun, so we worked with an L-shaped design that faces north and west. The new house is a single level, mono-pitched, 3-bedroom home that will appeal to a range of buyers.

Our designs use folded metal cladding on the exterior walls and the roofing to create one continuous metal fall with simple, clean lines. This is complemented by vertical timber panels on the interior walls, which provide a soft balance to the exterior steel.

The balance between exterior and interior continues on into the kitchen where we included built-in cabinetry that mimics the dark steel of the roofing. This colour palette was softened and offset by light stone benches.

To give the home a sense of spaciousness and to maximise the natural light into the house, we angled the ceiling to match the roof. The result is a beautiful, sun-drenched entertaining area. Through bi-fold doors the open-plan living area opens out onto a level deck that extends out into the garden.

The Result

We enjoy designing subdivision projects, and understand that the thought of undertaking such a project can seem daunting, particularly to some elderly clients. This project is a great example of how easy it can be to divide a section and build an attractive, modern home to generate retirement income.

If you’d like us to have an initial look at a section to discuss the feasibility of adding on another property, please get in touch.

More Projects