River View Terraces

We’ve been fortunate to be involved in several projects in Queenstown lately, which has given us opportunities to design for a variety of non-standard sections.

Although, you could probably say that building on a hill is standard for Queenstown. For this section, we were working with a multi-unit site at the top of a hill. As a north-facing site looking over the Shotover River, it had spectacular views to take advantage of.

The Brief

Our client asked us to design a duplex for this multi-unit residential zone site. Because of the incredible scenery of Queenstown, this is very different from designing a duplex for an urban centre like Auckland, for example. Not only do we have the steep terrain to work with, but we also want to make the most of the mountains and the views.

The brief here was to design two adjoining residences with a luxurious alpine feel, each with three bedrooms and a garage large enough for storing skis, bikes and other sporting equipment. The request was also to ensure that each home felt quite private from the house next door.

The Design

For many of our Queenstown architectural designs, we start with the same question in mind. How do we get in? When we’re working with a steep or tricky site, we begin by thinking about access to the site.

We think about access for the builders so that we’re not unnecessarily adding costs to the building process. And we look at how the occupants will access the site – what the approach will look and feel like when they arrive or when guests come to visit.

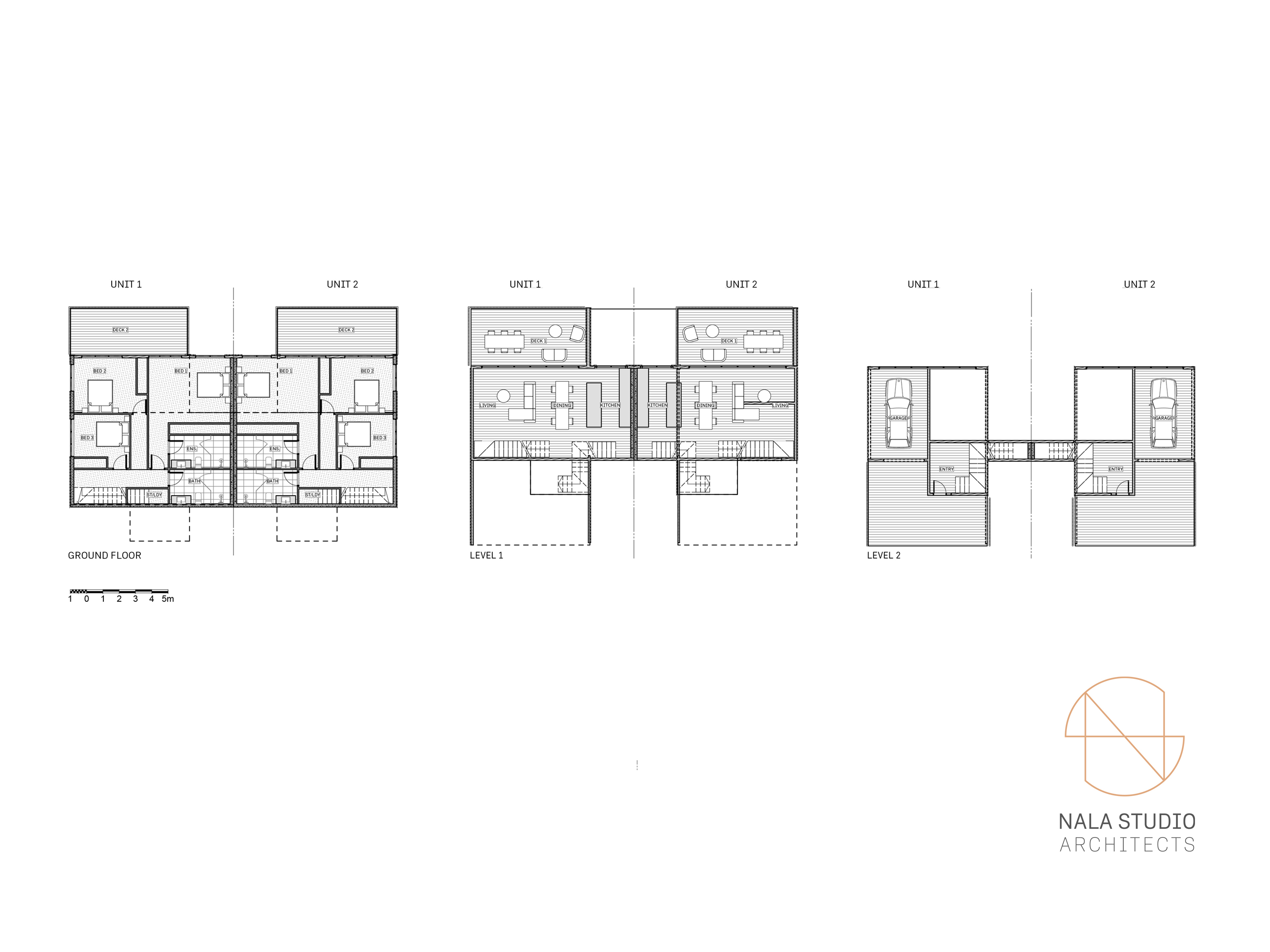
For this site, the access road is on the southern boundary of the section, on the high side of the site. So we’ve created a similar layout for each home and put the entrance on that southern side. Here we have, for each residence, the front door, a large garage and drying room. By setting the garage back slightly, we’ve made room for a small additional parking spot out front for each home.

As you enter the front door, you’re embraced by a gorgeous double height space with huge windows that let in the sun and the views. Following the contours of the hill downwards, stairs take you down to the middle level. This is where you find the kitchen, dining and living areas which open out to a beautiful north-facing deck.

One level down from this is where we’ve positioned the three bedrooms and an additional living area that also opens out to another large deck. By having this lower deck extend further out from the one on the middle level, our intention was to create an entertaining area on the middle level where adults could enjoy themselves while children could be on the level below, still within sight.

The roofline consists of two gables with a mono pitch roof between the two residences. This creates a nice divide between the two homes, with bathrooms, storage and space for laundry here. There is enough distance between the two gables and between the living areas of the homes that you can comfortably be entertaining without worrying about disturbing the neighbour.

An interesting detail about the design of these homes is that we offset the gables, pulling the one on the western side slightly away from the centre. For the home on the eastern side, the side wall goes up and then folds to form the roof; but on the west side, the gable tucks back in to meet the wall, so that is no wing wall on the west side.

This gives the look and feel that the homes are slightly oriented away from one another, adding to the sense of privacy. It also allows for more of the evening sun as it sets on that western side.

We used a similar approach on the side of the homes where the entrances and garages are. This allows for more sun to come into the spaces, while also providing privacy. You can’t actually see into the neighbouring home because of the design of the wing wall and roof overhang.

The Result

The outcome is a clever design where we have two units that are technically a duplex, because they are attached by the mono pitch roof between them. But they have a great deal of privacy because of how we’ve designed the roofline and side walls, and how we’ve separated the bedrooms and living spaces.

To complement the other homes in the area, we again used a wonderful balance of vertical timber and folded metal cladding. This design style suits the brief for a luxurious alpine feel and creates great flexibility for the unique roofline and wall features that give these homes exposure to the sun and views, with a good amount of privacy.

Similar Projects