Refugio de Montaña, Arthurs Point, Queenstown

3 level luxury Queenstown new home design

In 2022 we saw a bit of a surge in demand for projects in Queenstown, a location that brings creative opportunities as well as some unique design challenges due to the hilly landscape. We view these sites as the perfect canvas for designing multi-level homes with different zones and ideal for combining different building materials.

The Brief

For this project, we were asked to architecturally design a family home on a large section that overlooks the Shotover River in Arthurs Point, Queenstown. The section is quite steep, facing northeast and climbing up in contours towards the back, southern side, in another word a steep site towards the south, something we see a lot of as Queenstown Architects.

Our client requested a home with four bedrooms, two living areas and a large double garage creating the perfect mountain refuge. Their other specification was that we use natural schist (stone) that is found in the Queenstown area.

Finally they wanted to ensure we took advantage of the views out over the Shotover River towards Cornet Peak to get the best of the natural Queenstown Architecture.   

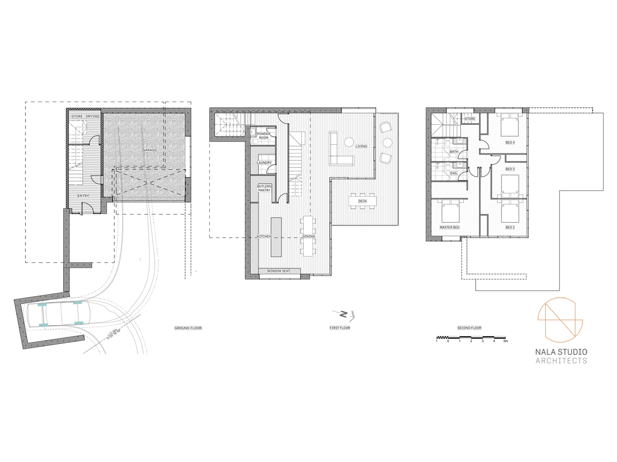
The Design

We designed, quite literally, from the ground up. We began with a level entry for the driveway and worked up through the hill from there, stepping the house back into the hill as we got further up.

The house is oriented towards the view, facing northeast, with a slight twist or L-shaped footprint. This enabled us to position additional windows on the western side to take advantage of the gorgeous afternoon and evening sun that Queenstown offers in the summer.

Working with the contours of the hillside, we designed a three-storey house with a flat roof design. We made the most of the height of the steep site, allowing for magnificent views from the top two levels.

The bottom level comprises private vehicle access, the garage, a drying room and extra storage for skis, bikes and other sports equipment. The third and top level houses the bedrooms and ensuite bathrooms. And in the middle, we have the communal areas, providing a clever separation from the entrance, storage and bedrooms.

The living area and kitchen, situated on the second level, face towards the east and then flow into a dining area that opens out onto a deck, which is situated over the garage below. This provides an outdoor eating and entertaining area which gets the outlook and sun, along with stunning views from the bedrooms on the top level.

The Result

The house is anchored into the side of the hill with lower and side walls clad with schist. These are deliberately blended with natural timber vertical cladding that is used to give a softer feel to the elevated sections and the areas used by the occupants.

It’s a beautiful blend of hard and soft, embedded and elevated, function and form.

Similar Projects